Nantes Lamoricière, 3 pièces
T3 standing en impasse, calme complet
- Prix de vente FAI 370000€
- 72m² Surface habitable Carrez
- 3Pièces
- 2Chambres
- Avec ascenseur
- Consommation B
- GES B
-
Consommation
-
GES
T3 standing en impasse, calme complet
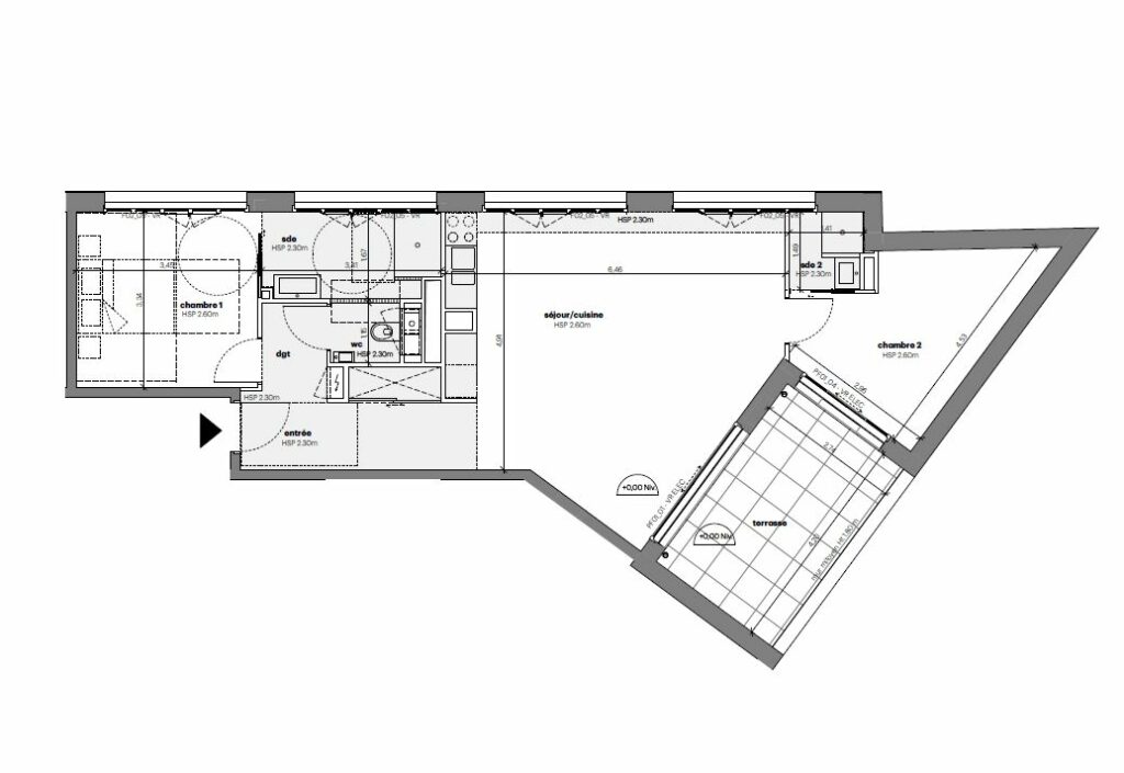
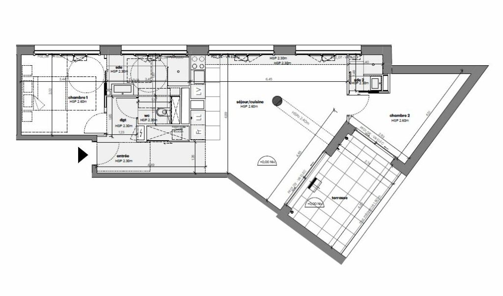
Situation Privilégiée, au fond d'une impasse du centre ville, dans une copropriété à taille humaine appartement T3 aux prestations de grand standing de 72 m2 prolongé par un extérieur de 11.5 m2 accessible depuis le séjour et une chambre.
Pièce principale de 35 m2 cuisine comprise.
Chaque chambre dispose de sa propre salle d'eau. Wc séparés.
Une place de parking est comprise dans le prix de vente.
Chauffage via traitement de l'air couplé à la chaudière individuel gaz, sèche serviette dans la salle de bains.
Avantage de ce logement : garantie décennale, dernières normes énergétiques, ascenseur, extérieur, cuisine aménagée, doubles expositions idéales, parking, en impasse, terrasse.
Frais de notaire réduits, disponibilité immédiate
La présente annonce immobilière vise 1 lot principal de copropriété, d'un montant de charges communiqué par le vendeur de 1 225 € annuel.
Prix de vente, frais d’agence inclus : 370 000 €
Honoraires d’agence à la charge du vendeur
Hors frais notariés, de publicité et d’enregistrement.
Information d'affichage énergétique sur ce bien :
classe ENERGIE : B indice 85
classe CLIMAT : B indice 10
Date de réalisation du diagnostic : 16/02/2024
Montant estimé des dépenses annuelles d'énergie pour un usage standard : entre 620 € et 890 € par an. Prix moyens des énergies indexés sur l'année 2021 (abonnements compris)
Les informations sur les risques auxquels ce bien est exposé sont disponibles sur le site Géorisques : www.georisques.gouv.fr.